Ashby
Nub News Logo
Nub News

‘Ludicrous’ self-build home plan turned down three times

Local News by Chris Harper - Local Democracy Reporting Service 1 hour ago  
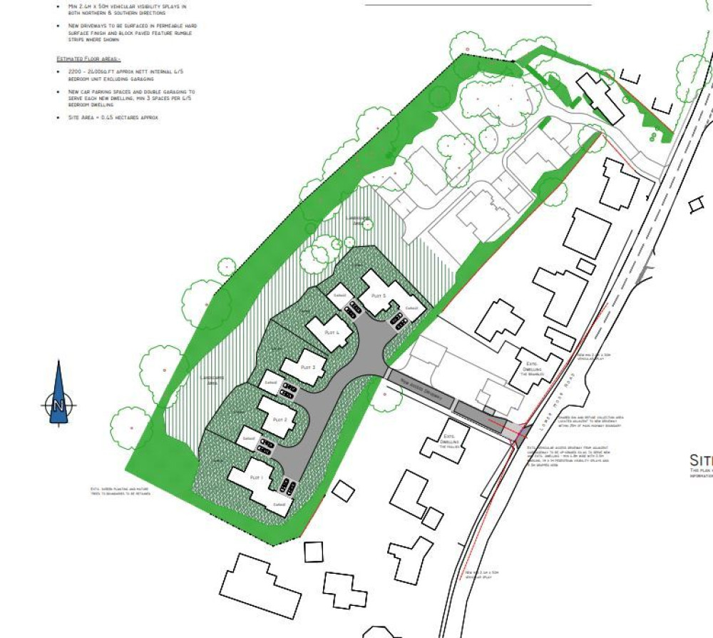
The outline plans for the refused Coleorton development (image via planning application)
The outline plans for the refused Coleorton development (image via planning application)
advertisement

A 'ludicrous' plan for a number of self-built homes in a historic Leicestershire village has been refused for the third time by officials.

North West Leicestershire District Council's (NWLDC) planning committee met to discuss the proposals to build five self-build homes on land just off Lower Moor Road, Coleorton, near Coalville, by applicant Darren Betteridge.

It isn't the first time the proposal has been refused by councillors and the government's planning inspectorate, both of which ruled against the self-build scheme in 2024.

The government planning inspector ruled that the previous plan would "suburbanise" the rural village area; however, the new plan included several changes, including moving the proposed access to the site further away from a Grade II-listed park and gardens.

During the planning meeting, there was significant opposition to the homes, including from 15 local residents, Coleorton Parish Council, Historic England, and conservation and ecology officers.

The meeting saw one objector, representing Coleorton residents, said that the village was an unsustainable place to live due to a lack of locally-based facilities.

She said: "We have no buses in Coleorton, not hourly, not half hourly. They do not run seven days a week.

"Donington and Loughborough are not within five miles, and it is certainly not safe to cycle. We are not sustainable. We've lost every single service we had. We have nothing. We all rely on cars".

advertisement

The objector also hit out at the applicant's "two other planning permissions for other properties that haven't even started".

She added: "There is absolutely no need for and no benefit to this applicant being granted more housing along this road. It would be ludicrous".

Oliver Patrick, on behalf of Mr Betteridge, told the committee the latest self-built homes plan was "small scale", "supported by national planning policy" and said that the applicant took the planning inspector's comments "on board".

He added: "This is not a repeat of the application that came before you, but a refined and revised proposal shaped by the planning process".

Mr Patrick also said that Mr Betteridge has a number of "significant letters of support" from members of the public "hoping to buy a self-build plot".

Independent councillor Rachel Canny said during the meeting that she noted that Coleorton has a "distinct character to it" and the plan went against it.

She added: "It's got space around it. All houses aren't linear to each other. Officers have said that there are clusters of houses. Yes, there are.

"None of the houses that I've looked at are that close together. I think it is quite contrary to the character of Coleorton.

advertisement

"We do have an applicant who really seems to enjoy having planning permission. I don't think I've ever seen a particular development have so many planning permissions, given, refused and messed about with".

She noted that the committee's "problem" was that it was five homes and that the council did need self-build homes.

Labour Cllr John Legrys said the plan was close to a heritage site and that he felt "strongly" the development was "out of character" for a "historic village" and being close to "precious" and "historic" areas.

Conservative Cllr Nigel Smith also said it was a "classic situation of someone trying to get planning permission where they know they would not normally be granted".

He added: "They think if they stick self-build in front of it, we're going to roll over and let them do what we want".

Despite opposition, Labour Cllr Dave Bigby said he had no problem with the build and that it was going to "spoil the view of a few people living on Lower Moor Road".

Councillors proposed a motion to deny the application. It was passed with nine councillors voting to refuse, with one voting against the motion.

     

CHECK OUT OUR Jobs Section HERE!
ashby vacancies updated hourly!
Click here to see more: ashby jobs

     

Local news is in crisis.

Newspapers around the country are closing at an alarming rate.

Nub News is changing that.
Please consider supporting us.
Your contribution will be a GAME-CHANGER.
Monthly supporters will enjoy:
Ad-free experience
advertisement

Share:

Comments (0)

Post comment

No comments yet!


34% OFF

 Save  up to  63%  222 Bought PRICE DROP! Wingline Divan Bed & Mattress - 8 Colours - 2 or 4 Drawers Option View variant  Save  up to  34%  66 Bought Falcon Velvet Scatterback Sofa Range – Armchair, 2-Seater, 3-Seater & 3+2 Set | Plush Velvet Sofas for Modern Living Rooms View Selling fast! gemini_outpaint_variant_43944525  Save  69%  313 Bought PRICE DROP! Luxury Rio Divan Bed: Premium Memory Sprung Foam Mattress & Optional Storage Drawers - 6 Sizes & 10 Colours View Selling fast! variant  Save  75%  5404 Bought Crushed Velvet Divan Bed & Memory Sprung Mattress - 7 Colour Options View Selling fast! variant  Save  68%  549 Bought PRICE DROP! Plush Velvet Pure Wingback Upholstered Bed with Memory Foam Sprung Mattress View DMD Collective 20-Bar Espresso Coffee Machine with Digital Display and Milk Frother
Pull an espresso and a smile-it's café quality right at home! 20-Bar Espresso Coffee Maker with Frother
£89.99 £58.74

70% OFF

Kick back and defy gravity-comfort truly knows no bounds here! Zero Gravity Reclining Sun Lounger Chairs from Hirix International LTD
£199.99 £59.7

43% OFF

Outdoor 6-Seater Modular Rattan Corner Sofa Set with Coffee Table
Sofa good, you'll wish every seat at home was this comfy! - Modular Rattan Corner Sofa 6-Seater Set from Furniture One Limited
£699 £398.43

Sign-up for our FREE newsletter...

We want to provide ashby with more and more clickbait-free news.

     

...or become a Supporter.
Ashby. Your Town. Your News.

Local news is essential for our community — but it needs your support.
Your donation makes a real difference.
For monthly donators:
Ad-free experience